Escape to the Teign Valley with this characterful barn conversion, offering 4.6 acres with paddock, stables & woodland, it’s perfect for equestrian or rewilding passions. Cosy wood-burners, a private garden & flexible spaces create an idyllic rural lifestyle. Freehold, Council Tax Band E, EPC E, Private Drainage, Bore Hole for water, LPG Gas. Broadband available.
THE PROPERTY Enjoying countryside views across the picturesque Teign Valley, this versatile detached barn conversion offers a superb opportunity to embrace a true Devon lifestyle. The property comes with a paddock, stables and areas of woodland extending to some 4.64 acres, making it ideal for those with equestrian, smallholding, rewilding interests or for those seeking their slice of Devon life.
Inside, the accommodation blends character and comfort, with exposed beams and natural stonework enhancing its appeal. The layout is highly versatile, offering scope to adapt to individual needs, including the option for a self-contained annexe or flat. At the rear, an enclosed garden provides a tranquil spot to relax outdoors, while two wood-burning stoves bring warmth and atmosphere through the colder months. Practical benefits, such as parking on both sides, sit alongside the property's character and flexibility. It is a home that balances space, style, and lifestyle - all within one of Devon's most desirable valleys.
LOCATION Nestled in the highly sought-after and picturesque Teign Valley, this property enjoys an enviable setting just two miles from the small town of Chudleigh. Despite its excellent connections, Chudleigh retains a charming village atmosphere, with a strong sense of community and character, all surrounded by unspoilt Devon countryside.
Perfectly positioned between Exeter and Newton Abbot, and close to the edge of Dartmoor National Park, the area offers endless opportunities to enjoy the great outdoors. Dartmoor is famed for its dramatic granite tors, wooded river valleys, and wide stretches of open moorland, ideal for walking, cycling, riding, and fishing on the River Dart. For a change of scene, many of South Devon's finest beaches are also within easy reach.
Chudleigh itself offers a wide range of everyday amenities, including shops, parks, a swimming pool, football pitches, cricket field, parish church, doctor's surgery, dentist, and library. Families benefit from Chudleigh Primary School, with the well-regarded Teign School in Kingsteignton for secondary education. Supermarkets can be found in Kingsteignton, Newton Abbot, and Exeter.
For commuters, the A38 (Devon Expressway) provides excellent access to Exeter, Plymouth, and the M5 motorway, while the A380 connects directly to Torbay. Mainline rail services to London Paddington are available from Newton Abbot, Totnes, and Exeter St Davids, and Exeter International Airport offers flights to a wide range of destinations.
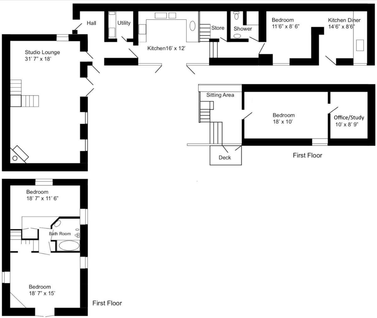
GROUND FLOOR A traditional wooden door opens into the hallway and leads through to the kitchen/breakfast room – a practical yet atmospheric space with a classic electric AGA at its heart. Fitted with a range of units and tiled splashbacks, the kitchen offers ample storage and workspace, while there is plenty of room for a large dining table, making it the natural hub of the home. The character continues with wood effect flooring, rustic detailing and steps rising to a mezzanine-style landing, adding architectural interest and a sense of openness.
From here, a useful larder and a flexible wing of the house are easily accessed, offering potential for a self-contained annexe or guest suite with shower room and independent entrance.
The living accommodation flows beautifully, with a galleried landing leading to a decked balcony overlooking the garden. Off this space is a cosy additional living room, complete with a wood-burning stove and exposed beams – the perfect retreat for relaxing evenings. Adjoining this is a versatile bedroom/home office, offering flexibility to suit individual needs.
The main sitting room is wonderfully generous, with double doors opening directly to the garden. A second wood-burning stove adds character, while the proportions easily allow for both a comfortable seating area and a large dining table, making it ideal for entertaining.
FIRST FLOOR Upstairs, the principal bedroom enjoys lovely views across pasture and towards the River Teign, complemented by exposed beams and a built-in double wardrobe. A further double bedroom offers a dual aspect and opens onto a raised garden terrace, previously used as a productive vegetable patch. Completing the accommodation, the family bathroom includes a bath with shower over, WC, bidet, and wash hand basin.
OUTSIDE Outside, the rear garden is private and enclosed, offering a peaceful spot for outdoor dining and relaxation. Parking is available to both sides of the property, adding practicality to the home's considerable charm.
Brunrigg is a property that brings together character, space, and flexibility - all set within the sought-after Teign Valley, where countryside views and a welcoming community create a truly enviable lifestyle.
KEY FACTS FOR BUYERS TENURE - Freehold
COUNCIL TAX BAND - E
EPC - E
SERVICES
Mains electricity, private drainage which we are advised by the sellers is compliant with current regulations. Private bore hole water.
BROADBAND
Super Fast Broadband is available but for more information please click on the following link -Open Reach Broadband
MOBILE COVERAGE
Check the mobile coverage at the property here - Mobile Phone Checker
VIEWINGS Strictly by appointment with the award winning estate agents, Sawdye & Harris, at their Teign Valley Office - 01626 852666 Email - hello@sawdyeandharris.co.uk
If there is any point, which is of particular importance to you with regard to this property then we advise you to contact us to check this and the availability and make an appointment to view before travelling any distance
PLEASE NOTE The Digital Markets, Competition and Consumers Act 2024,
All measurements, floorplans, and land plans are provided for illustrative purposes only and are approximate. Measurements are quoted in imperial with metric equivalents, for general guidance only. While every effort is made to ensure accuracy, these sales particulars must not be relied upon, and all details should be confirmed by the buyer's solicitor or surveyor. Sawdye & Harris has not tested any services, systems, or appliances and no guarantee can be given regarding their condition or working order. Photographs are for marketing purposes only. Fixtures and fittings shown may not be included unless specifically stated. Some items may be available by separate negotiation. If there are important matters which are likely to affect your decision to buy, please contact us before viewing the property.
The Digital Markets, Competition and Consumers Act 2024, which came into force in April 2025, sets out new standards for transparency in property marketing. It requires estate agents to provide clear, accurate, and complete material information to help consumers make informed decisions.
At Sawdye & Harris, we are committed to full compliance with this legislation. The information contained in this brochure is provided in good faith, based on details supplied by the seller and/or sourced from publicly available data such as HM Land Registry.
Please note:
* All information should be verified by the buyer's solicitor as part of the conveyancing process.
* Descriptions, property details, and material facts are provided as accurately as possible but are not guaranteed and should not be relied upon as statements of fact.
* Any legal rights, boundaries, or planning permissions should be confirmed via your legal adviser.
If there are important matters which are likely to affect your decision to buy, please contact us before viewing the property.
AML REGULATIONS AND REFERRALS AML REGULATIONS AND REFERRAL FEES
We may refer buyers and sellers through our conveyancing panel. It is your decision whether you choose to use this service. Should you decide to use any of these services that we may receive an average referral fee of £100 for recommending you to them. As we provide a regular supply of work, you benefit from a competitive price on a no purchase, no fee basis. (excluding disbursements).
We also refer buyers and sellers to our mortgage broker. It is your decision whether you choose to use their services. Should you decide to use any of their services you should be aware that we would receive an average referral fee of up £250 from them for recommending you to them.
You are not under any obligation to use the services of any of the recommended providers, though should you accept our recommendation the provider is expected to pay us the corresponding Referral Fee.
To comply with UK Anti Money Laundering legislation, we are required to complete ID verification checks on all sellers and buyers and to apply ongoing monitoring until the transaction ends. Whilst this is the responsibility of Sawdye & Harris, we may use the services of an external AML to verify Clients' identity and there is a non-refundable charge of £20 per person. This is not a credit check so it will have no effect on your credit history.
Read less