This is far more than a barn conversion — it’s a home that truly leaves a lasting impression.A stunning, attached Grade II Listed thatched barn offering over 2,700 sq ft of versatile accommodation, including five bedrooms, garage and allocated parking, set within a peaceful yet highly accessible position on the edge of Dartmoor. A striking and individual home full of character, The Threshing Barn blends architectural charm with flexible living space and everyday practicality — ideal for those seeking something genuinely special. Freehold. Council Tax Band G. EPC D.
THE PROPERTY This is not simply a barn conversion - it is a home that leaves a lasting impression.
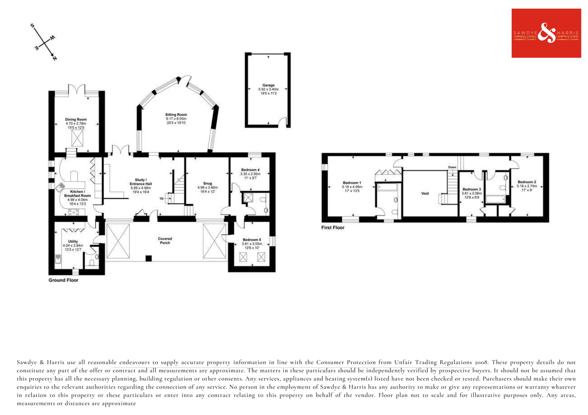
A stunning Grade II Listed thatched barn conversion offering over 2,700sq ft of versatile living space, including five bedrooms, a garage and allocated parking - all set within a highly accessible yet peaceful setting near Dartmoor. A landmark property of striking design and exceptional character, The Threshing Barn is a home for those seeking something genuinely different - combining architectural drama, lifestyle flexibility and everyday practicality in equal measure.
From the moment you arrive, the individuality of this home is unmistakable. The distinctive thatched form, curved architectural lines and courtyard setting create an immediate sense of character - a property that feels both grounded in its history and entirely unique in its design. Set within the attractive setting of Pitt Farm, The Threshing Barn offers a rare balance of privacy, charm and accessibility - ideal for those seeking a lifestyle move without compromise.
ACCOMMODATION The entrance hall sets the tone - dramatic in scale, with a double-height ceiling, exposed timbers and a galleried landing above.
At the heart of the home lies the remarkable roundhouse sitting room. Curved in form, with exposed stone walls and a vaulted ceiling, it is both atmospheric and inviting - a space that naturally draws people in. This is a room for all seasons, equally suited to quiet evenings or entertaining, with doors opening directly onto the garden.
The kitchen/breakfast room is both stylish and practical, offering generous workspace, integrated appliances and a natural connection to the dining space beyond. The dining area, with its vaulted ceiling and rooflight, creates an uplifting environment for everyday living - a space that adapts effortlessly from relaxed mornings to larger gatherings. A separate snug provides a quieter retreat, rich in character and perfect for unwinding away from the main living spaces.
The accommodation is both generous and adaptable, offering five bedrooms arranged across the home to suit a variety of lifestyles. The principal bedroom is a particularly special space - light-filled, characterful and elevated in feel, with exposed beams and a calm, private atmosphere. The additional bedrooms provide flexibility for family life, guests or home working, allowing the house to evolve as needs change.
The bathrooms are thoughtfully arranged to balance everyday practicality with a sense of comfort and space. The principal ensuite is well-proportioned and naturally in keeping with the character of the home, offering a calm and private setting - ideal for both busy mornings and more relaxed routines at the end of the day. The family bathroom serves the remaining bedrooms and is equally generous, designed to accommodate both family life and guests with ease. A separate ground floor shower room adds further flexibility, particularly suited to visiting guests or multi generational living - allowing the layout to adapt effortlessly to changing needs.
OUTSIDE The cottage-style gardens wrap around the property, offering a wonderful sense of privacy and tranquillity.
With a south-westerly orientation, the outdoor space enjoys long afternoons of sunlight - ideal for dining, entertaining or simply relaxing. Established planting, shaped lawns and patio areas create a setting that feels both natural and considered, while the covered porch to the front provides an additional sheltered space to
enjoy throughout the seasons.
KEY FACTS FOR BUYERS TENURE - Freehold. with vacant possession.
Please note there is a management charge for the common parts within Pitt Farm which is currently charged at £50 per month.
COUNCIL TAX BAND - G
EPC - D
SERVICES
The property has mains electric, gas and water. There is a shared private water treatment plant serving the whole of Pitt Farm. The property has gas fired central heating.
BROADBAND
Superfast Broadband is available but for more information please click on the following link Open Reach Broadband
MOBILE COVERAGE
Check the mobile coverage at the property here -
ABOUT CHUDLEIGH KNIGHTON Chudleigh Knighton is a well-connected and sought-after village on the edge of the Teignbridge countryside, offering an attractive balance of village life and accessibility.
Positioned conveniently for the A38, the village provides straightforward links to Exeter, Newton Abbot and the wider South Devon area. Local amenities include a popular primary school, an active village hall/community hub, and the characterful Claycutters Arms public house and restaurant.
Surrounded by beautiful countryside and within easy reach of Dartmoor, Chudleigh Knighton remains a desirable setting for those looking to enjoy a more relaxed pace of life while remaining well connected for work and travel.
VIEWINGS VIEWINGS
Strictly by appointment with the award winning estate agents, Sawdye & Harris, at The Teign Valley Office - 01626 852666
Email - hello@sawdyeandharris.co.uk
If there is any point, which is of particular importance to you with regard to this property then we advise you to contact us to check this and the availability and make an appointment to view before travelling any distance.
AML REGULATIONS AND REFERRAL FEES We may refer buyers and sellers through our conveyancing panel. It is your decision whether you choose to use this service. Should you decide to use any of these services, we may receive an average referral fee of £100 for recommending you to them. As we provide a regular supply of work, you benefit from a competitive price on a no purchase, no fee basis. (excluding disbursements).
We also refer buyers and sellers to our mortgage broker. It is your decision whether you choose to use their services. Should you decide to use any of their services you should be aware that we would receive an average referral fee of up £250 from them for recommending you to them.
You are not under any obligation to use the services of any of the recommended providers, though should you accept our recommendation the provider is expected to pay us the corresponding Referral Fee.
To comply with UK Anti Money Laundering legislation, we are required to complete ID verification checks on all sellers and buyers and to apply ongoing monitoring until the transaction ends. Whilst this is the responsibility of Sawdye & Harris, we may use the services of an external AML to verify Clients' identity and there is a non-refundable charge of £30 plus VAT per person. This is not a credit check so it will have no effect on your credit
THE DIGITAL MARKETS, COMPETITION AND CONSUMERS ACT 2024, All measurements, floorplans, and land plans are provided for illustrative purposes only and are approximate. Measurements are quoted in imperial with metric equivalents, for general guidance only. While every effort is made to ensure accuracy, these sales particulars must not be relied upon, and all details should be confirmed by the buyer's solicitor or surveyor. Sawdye & Harris has not tested any services, systems, or appliances and no guarantee can be given regarding their condition or working order. Photographs are for marketing purposes only. Fixtures and fittings shown may not be included unless specifically stated. Some items may be available by separate negotiation. If there are important matters which are likely to affect your decision to buy, please contact us before viewing the property.
The Digital Markets, Competition and Consumers Act 2024, which came into force in April 2025, sets out new standards for transparency in property marketing. It requires estate agents to provide clear, accurate, and complete material information to help consumers make informed decisions.
At Sawdye & Harris, we are committed to full compliance with this legislation. The information contained in this brochure is provided in good faith, based on details supplied by the seller and/or sourced from publicly available data such as HM Land Registry.
Please note:
* All information should be verified by the buyer's solicitor as part of the conveyancing process.
* Descriptions, property details, and material facts are provided as accurately as possible but are not guaranteed and should not be relied upon as statements of fact.
* Any legal rights, boundaries, or planning permissions should be confirmed via your legal adviser.
If there are important matters which are likely to affect your decision to buy, please contact us before viewing the property.
Read less